Kuldebroverdier. Vegg av lettklinkerblokker med isolasjon, dekke av lettklinkerbetong

Byggforskserien

Juni 2013
472.371
Sist endret 01.06.2013
Printet av uinnlogget bruker 04.02.2026 © SINTEF. Ettertrykk forbudt.

472.371

Kuldebroverdier. Vegg av lettklinkerblokker med isolasjon, dekke av lettklinkerbetong

Juni 2013

Utgitt i samarbeid med
Enova

Generelt

01Innhold

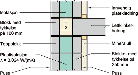
Fig. 01 a

Prinsipiell oppbygning av tilslutning mellom murt vegg og dekke av lettklinkerbetong
Blokktykkelse i veggen er på 250 eller 300 mm.

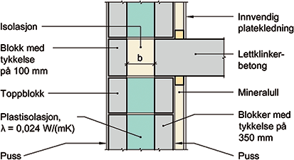
Fig. 01 b

Prinsipiell oppbygning av tilslutning mellom murt vegg og dekke av lettklinkerbetong
Blokktykkelse i veggen er på 350 mm

Denne anvisningen inneholder kuldebroverdier, ψ (W/(mK)), for tilslutning mellom vegg av murte blokker og dekke av lettklinkerbetong. Blokkene har vanger av lettklinkerbetong og kjerne av plastisolasjon. Se fig. 01 a og fig. 01 b.

Bruk av kuldebroverdier, forutsetninger for beregningene og materialegenskaper er beskrevet i Byggdetaljer 472.051 Kuldebroverdier for tilslutninger mellom bygningsdeler. Grunnlag for beregninger. Eventuelle spesielle betingelser er oppgitt i pkt. 1, pkt. 2 og pkt. 4.

02Oppbygning av bygningsdeler i tilslutningen

Oppbygningen av bygningsdelene i de forskjellige tilslutningene gir nødvendig informasjon for å bestemme kuldebroverdier. Nødvendig oppbygning for å dimensjonere bæreevne, lydisolering og brannsikkerhet osv. er vist i andre anvisninger i Byggforskserien.

Juni 2013 ISSN 2387-6328



For å lese mer må du kjøpe tilgang.

BFS
1253,25 kr/mnd

Byggforskserien komplett

Delserie Byggdetaljer
658,33 kr/mnd

Delserie Byggdetaljer

Enkeltanvisning
kr 282,00 for 12 mnd.

Enkeltanvisning

Alle abonnement faktureres 12 måneder forskuddsvis.

Se alle priser her

Andre abonnement

Prøveabonnement
Gratis

Prøveabonnement

Studentabonnement
fra kr 349,00

Studentabonnement


Les mer om Byggforskserien

Allerede abonnent?   Logg inn